Villa bifamiliare


280.000 €
164 m2
3 Camere
2 Bagni
1 Box
In zona residenziale tranquilla e poco trafficata, proponiamo una villa bifamiliare degli anni '90 dalle ampie metrature, ideale per una famiglia in cerca di spazi funzionali.

L’abitazione si sviluppa su tre livelli. Al primo piano la zona giorno è composta da un soggiorno con balcone, una cucina separata abitabile anch'essa con balcone, disimpegno e un bagno di servizio.

La zona notte si trova al secondo piano e offre tre camere da letto, di cui due con sfogo esterno, servite da un ampio bagno con vasca.

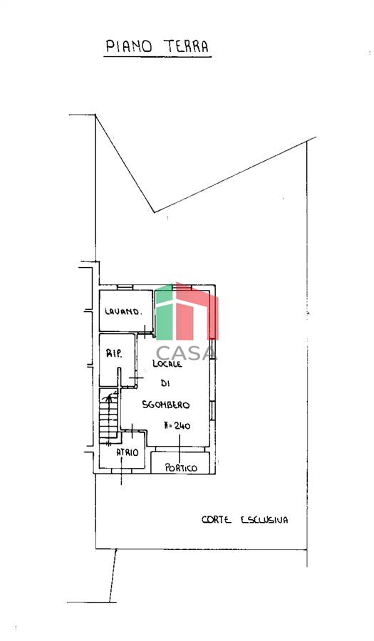
Il piano terra è dedicato ai servizi e comprende l'autorimessa, un pratico ripostiglio e il locale lavanderia/centrale termica.

Esternamente la proprietà dispone di un giardino privato sul retro della casa, che garantisce ottima privacy, e di un posto auto riservato nella corte.

La casa si presenta in buono stato, con gli spazi generosi tipici dell'epoca di costruzione, e rappresenta una soluzione ottimale per chi necessita di indipendenza e comodità in un contesto sereno.
Caratteristiche principali
Codice
V000270
Città
Sabbio Chiese
Categoria
Villa Bifamiliare
Locali
5
Camere
3
Bagni
2
Mq
164
Box
1
Balconi
3
Classe energetica
G
Stato Immobile
Buono
Grado
Medio
Posizione
Centro
Lati Liberi
3
Giardino
Privato
Arredi
Semi Arredato
Tipo Soggiorno
Soggiorno
Tipo Cucina
Abitabile
Riscaldamento
Autonomo
Tipo Riscaldam.
Caldaia
Tipo Impianto
Radiatori
Fonte Energetica
GPL
Acqua Calda
Autonoma
Accessori
Doppi Vetri
Mappa
Via P. Felter , Sabbio Chiese (BS)
Video
Planimetrie
Photo 28
Photo 28
Photo 28
Richiedi informazioni
Invia
Cookie preference